Transformatie van vrachtschip tot woonboot
Transformatie van Belgisch vrachtschip tot Amsterdamse woonboot
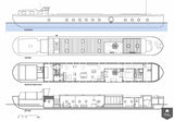
Kunstenaar Laura en restaurant eigenaar John wilde een grotere woonboot vanwege gezinsuitbreiding. Na enig speurwerk viel hun oog op een 40 meter lange Belgische Spitz. Het schip was net ‘met pensioen gegaan’ na een lang leven van vracht vervoeren over de Europese rivieren. Laura en John waren zo onder de indruk van de liefde en toewijding waarmee de kapitein het schip in al die jaren had onderhouden dat ze besloten om de stuurhut, de roef en de machinekamer intact te laten. Ze wilden het schip vaarbaar houden en om de certificering niet in gevaar te brengen mocht er weinig worden aangepast aan de romp, machinekamer, stuurhut en andere cruciale delen van het schip. Aangewezen plaats voor de woonruimte werd dus het ruim van het schip
Toen wij met de opbracht begonnen hadden we één belangrijk uitganspunt en dat was om een lichte en luchtige woonboot te maken. Veel woonboten die in het ruim van een vrachtschip zijn gemaakt zijn donker en soms zelfs somber. Om deze somberheid te voorkomen hebben we een grote patio en 18 oversized bronzen patrijspoorten geïntroduceerd. Hoewel een forse investering moesten we voor de ramen in de romp wel gebruik maken van deze in Pakistan gegoten patrijspoorten omdat anders de certificering in gevaar zou komen.
Om het ruim bewoonbaar te maken is het eerst rondom geïsoleerd met polyurethaan en vervolgens afgetimmerd in lichtgekleurd multiplex.
De entree van de woning en het voormalig vrachtruim gaat via een kleine patio in het laadruim vlak voor de stuurhut. De grote patio in het midden van de woning heeft als belangrijkste ingrediënten een glazen pui rondom, een buitenbad en een perenboom. Op een schip met kinderen is veiligheid altijd een zorg en een patio is een handige manier om toch een veilige buitenspeelplek te maken. Een perenboom is misschien niet heel erg normaal op eens chip maar in termen van afmeting of gewicht is het voor een vrachtschip natuurlijk een fluitje van een cent.
De keuken en het interieur zijn in nauw overleg met de bewoners van het schip ontworpen en reflecteren de kunst van Laura en de restaurantervaring van John. Centraal in de woonruimte het kookeiland dat altijd bedolven is onder de verschillende soorten verse groeneten en kruiden uit eigen patio. Aan de andere kant van de patio is er een ruime en lichte ouderslaapkamer die in niets doet denken aan een krappe scheepshut. Daarachter de grote gele badkamer en helemaal voorin in de roef van de matroos de kinderkamer met wel weer een echte scheepskooi.
Omdat het vrachtruim 5 x 30 meter groot is en ook nog eens ruim drie meter hoog kun je hier het gehele programma van een ruim appartement of zelfs een heel rijtjeshuis kwijt. Iets wat in het centrum van Amsterdam behoorlijk uniek is.
De intact gelaten ruimtes van de schipper en zijn familie, zoals de stuurhut en de roef zijn hier en daar aangepast aan de comforteisen van deze tijd en deze worden nu samen verhuurd als een zelfstandig appartement. Waar vroeg een schippersfamilie met twee kinderen woonde leeft nu één Koreaanse uitwisselingsstudent.
Facts:
Woonboot Borneokade Amsterdam Architect: BBVH Architecten BV Rotterdam Team BBVH: Joris van Hoytema, Jelle Baars Photo’s: Luuk Kramer ©

















